למכירה
🏗️ תוכנית מאושרת
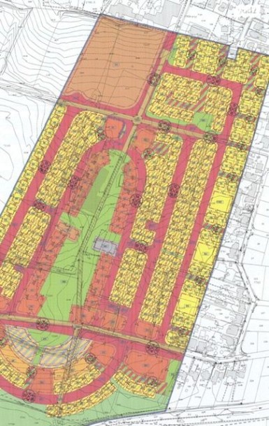
זכות לדירה במתחם שדות 374 | אבן יהודה
החוף, אבן יהודה, ישראל1.1מ' ₪
מס' צפיות על הנכס
433
מס פניות דרך הטלפון
159
מס' מיילים שנשלחו
0
מס התקשרויות דרך וואטסאפ
160
זכות לדירה במתחם שדות 374 | אבן יהודה
🏗️ תוכנית מאושרת
זכות לדירת למכירה במתחם שדות 374 המבוקש, אבן יהודה. הזדמנות נדירה שלא הייתה כמותה הרבה זמן במושבה הכי מבוקשת בשרון! מושלמת למשפחות שרוצות להישאר במושבה. התוכנית מאושרת בהזדמנות יוצאת דופן.
החוף
ישוב: אבן יהודה (ישראל)
1.1מ' ₪
סטטוס נכס: 🟢למכירה
קטגוריה: דירה
מס' חדרים: 0
מס' חדרי רחצה/ושירותים: 0
מס' קומה: 0
מ"ר (m²): 0
קרוב להכל📢
✔ פרוייקט חדש🆕
---
וילי מרקוביץ - 0533325330
לינק לוואטסאפ : https://did.li/kcaUY |
🏗️ תוכנית מאושרת
זכות לדירת למכירה במתחם שדות 374 המבוקש, אבן יהודה. הזדמנות נדירה שלא הייתה כמותה הרבה זמן במושבה הכי מבוקשת בשרון! מושלמת למשפחות שרוצות להישאר במושבה. התוכנית מאושרת בהזדמנות יוצאת דופן.
החוף
ישוב: אבן יהודה (ישראל)
1.1מ' ₪
סטטוס נכס: 🟢למכירה
קטגוריה: דירה
מס' חדרים: 0
מס' חדרי רחצה/ושירותים: 0
מס' קומה: 0
מ"ר (m²): 0
קרוב להכל📢
✔ פרוייקט חדש🆕
---
וילי מרקוביץ - 0533325330
לינק לוואטסאפ : https://did.li/kcaUY |
החוף, אבן יהודה, ישראל